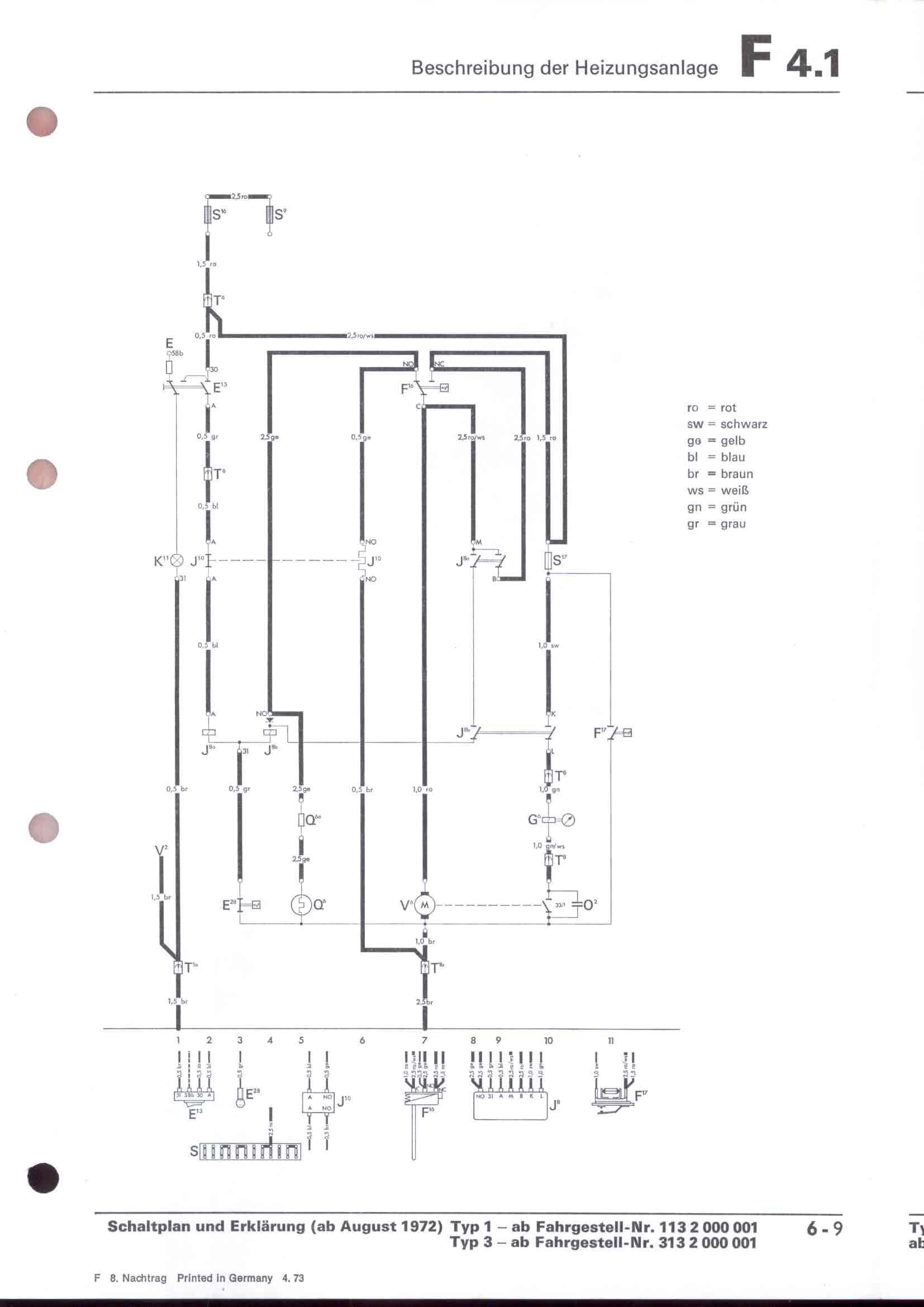
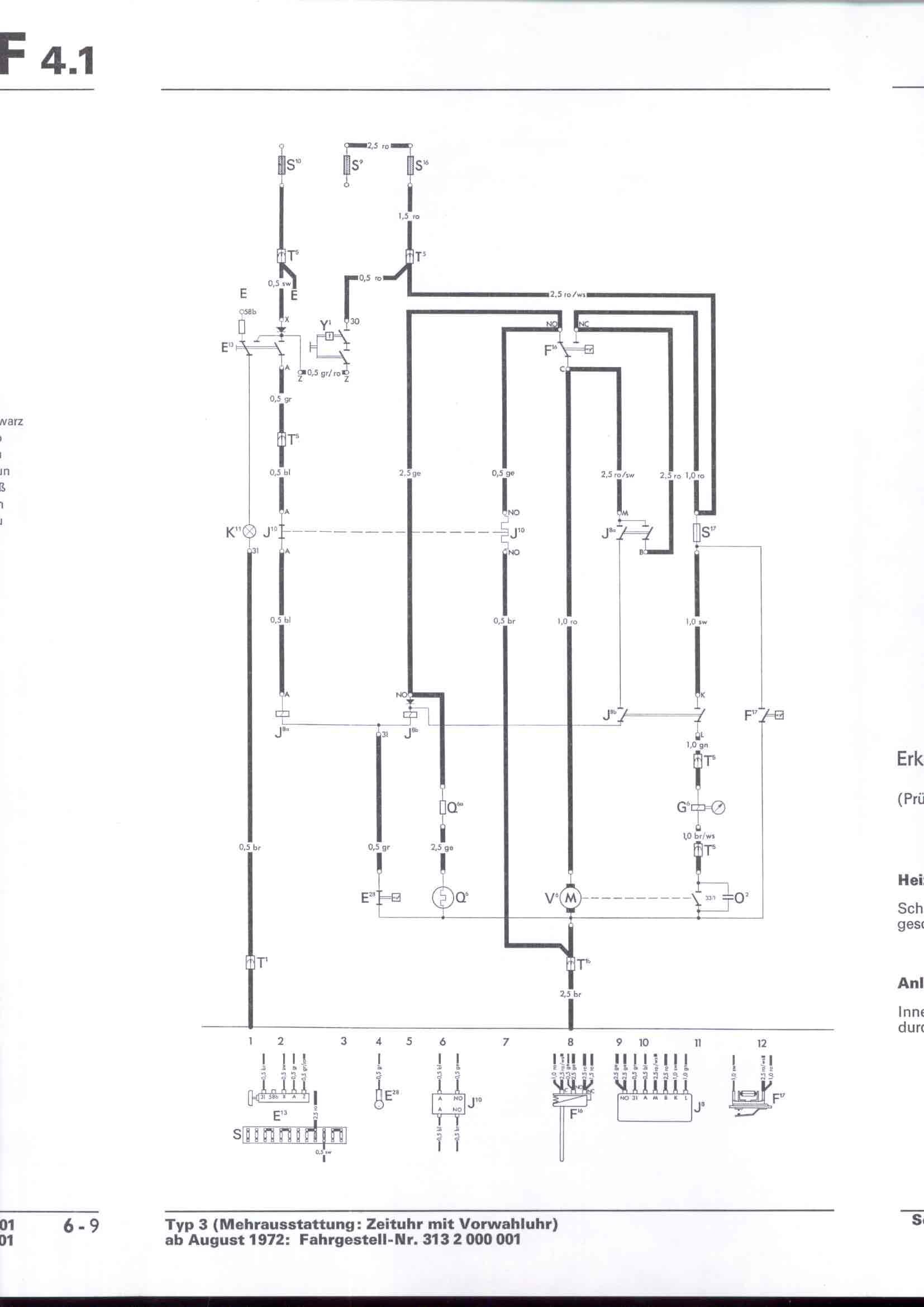
RLF F: F4.1/6-9



vorherige Seite