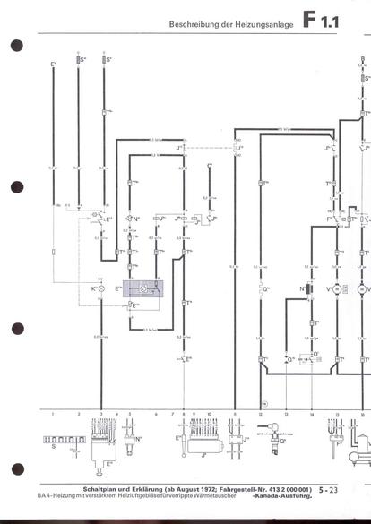
RLF F: F1.1/5-23



vorherige Seite     nächste Seite